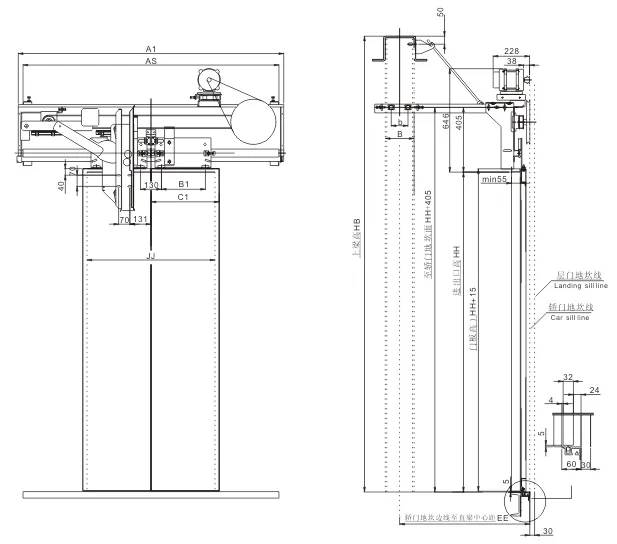
Center opening VVVF door operator(Straight beam mounting)
The VVVF inverter control tech-nology
Synchronous belt drive, a slow, more stable and reliable operat- ion
Asynchronous door knife

| JJ | 700 | 750 | 800 | 850 | 900 | 950 | 1000 | 1050 | 1100 | 1150 | 1200 |
| A1 | 1460 | 1560 | 1660 | 1760 | 1860 | 1960 | 2060 | 2160 | 2260 | 2360 | 2460 |
| B1 | 225 | 250 | 275 | 300 | 325 | 350 | 375 | 400 | 425 | 450 | 475 |
| C1 | 375 | 400 | 425 | 450 | 475 | 500 | 525 | 550 | 575 | 600 | 625 |
| AS | According to the straight beam inside the car frame size determination |
| EE | According to the depth of the car 1/2 determine |
| Bb | According to user requirements |
Our factory:



About us
Why choose us?Shanghai Sunny Elevator Co., Ltd, founded in 1992, is a 28-year professional manufacturer specializing in designing and producting Opto-Electro-Mechanical products.
Sunny Elevator has started import and export since 2012.
We have experience in exporting all kinds of elevator parts and complete elevator to 80 countries all over the world.