Lift Side Opening 2 Panels Landing For Elevator Spare PartsSN-DM-FESO-02:Side-opening 2 Panels Door OperatorVWVF(varying voltage and varying frequency) Variable Frequency Control TechnologyOne-Level speed-down and synchronous belt driveInstallation: Car top installation and Car frame installation( s......
Lift Side Opening 2 Panels Landing For Elevator Spare Parts
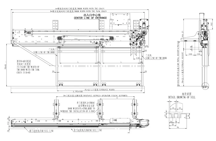
SN-DM-FESO-02:Side-opening 2 Panels Door Operator
VWVF(varying voltage and varying frequency) Variable Frequency Control Technology
One-Level speed-down and synchronous belt drive
Installation: Car top installation and Car frame installation( selectable )
| PL | 600 | 700 | 800 | 900 | 1000 | 1100 | 1200 | 1300 | 1400 | 1500 | 1600 | 1700 | 1800 | 1900 | 2000 |
| A | 1065 | 1215 | 1365 | 1515 | 1665 | 1815 | 1965 | 2115 | 2265 | 2415 | 2565 | 2715 | 2865 | 3015 | 3165 |
| B | 980 | 1130 | 1280 | 1430 | 1580 | 1730 | 1880 | 2030 | 2180 | 2330 | 2480 | 2630 | 2780 | 2930 | 3080 |
| C | 180 | 230 | 280 | 330 | 380 | 430 | 480 | 530 | 580 | 430 | 480 | 530 | 580 | 630 | 680 |
| L | 210 | 260 | 310 | 360 | 410 | 460 | 510 | 560 | 610 | 660 | 710 | 760 | 810 | 860 | 910 |
Overall dimensions
SN-DM-FESL-02:Side-opening 2 Panels Landing
The design of concise
FEL-161A Landing door lock with CE certification
Self-closing methods: Using weight drop self. closing mode, the weight drop and the guide rod placed inside of the door panels
Unlocking methods: using door panel unlocking
| PL | 600 | 700 | 800 | 900 | 1000 | 1100 | 1200 | 1300 | 1400 | 1500 | 1600 | 1700 | 1800 |
| A | 1020 | 1170 | 1320 | 1470 | 1620 | 1770 | 1920 | 2070 | 2220 | 2370 | 2520 | 2670 | 2820 |
| B | 980 | 1130 | 1280 | 1430 | 1580 | 1730 | 1880 | 2030 | 2180 | 2330 | 2480 | 2630 | 2780 |
| C | 419.5 | 469.5 | 519.5 | 569.5 | 619.5 | 669.5 | 719.5 | 709.5 | 759.5 | 809.5 | 859.5 | 919.5 | 959.5 |
| F | 1100 | 1300 | 1500 | 1700 | 1900 | / | |||||||
| G | 40 | 75 | 90 | ||||||||||
| L | 185 | 235 | 285 | 335 | 385 | 435 | 485 | 535 | 585 | 635 | 685 | 735 | 785 |
Overall dimensions






Passenger Elevator with Gearless Traction Machine, Support Professional Sevice
Xizi Gearless Traction Home Passenger Elevator Lift with Small Machine Room
Vertical Disable Elderly House Elevator Platform Hydraulic Home Villa Wheelchair Residential Passenger Observation Glass Scenic Panoramic Sightseeing Lift
Compactdesign and Energy Saving Small Machine Room Passenger Elevator Lift
FUJI China Factory Passenger Elevator Home Goods Lift with with Cheap Price Vvvf Control Residential Lift
Home Elevator Lift Price/Residential Elevator /Villa Elevator for Private Home Elevator/ Passenger Elevator